
Service Etudes Technique
La conception et le calcul des structures en béton armé sont des étapes essentielles dans la construction de bâtiments solides et durables. Ces procédés nécessitent une expertise technique approfondie pour assurer la sécurité et la résistance de la structure. L'étude comprend l'analyse des charges statiques et dynamiques auxquelles la structure sera soumise, ainsi que la sélection des matériaux et des dimensions appropriées. Nous utilisons des logiciels avancés de modélisation et de simulation pour évaluer la capacité portante de la structure et garantir sa stabilité. Ils doivent également prendre en compte les normes de construction en vigueur et les exigences spécifiques du projet. Grâce à nos savoir-faire, nous avons contribuent à réaliser des structures sûres et durables qui répondent aux besoins des utilisateurs.


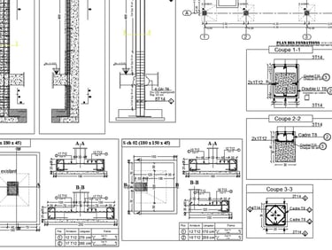
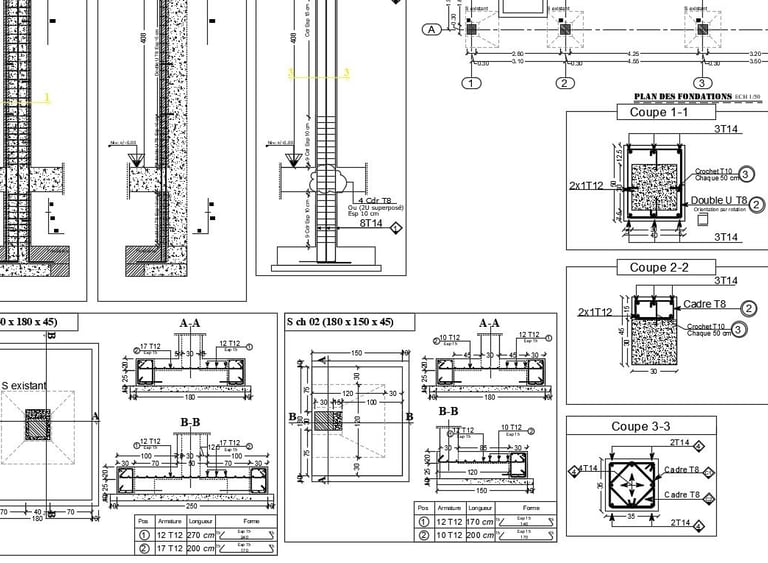
Etude des construction en béton armé.


Etude et conception des structures métallique.
Grâce au modilisations 3D des structures métalliques. Notre équipe d'experts est en mesure de vous fournir des plans d'exécution détaillés pour vos projets. nous mettons tout en oeuvre pour vous offrir des solutions sur mesure. à notre expertise et à notre savoir-faire, nous assurons une précision en milimetre des détails d'assemblages et fabrication des profilés.
Faites confiance à notre équipe pour concrétiser vos projets de structures métalliques avec efficacité et professionnalisme.
03
L'étude de confortement des anciens bâtis est une démarche essentielle pour assurer la sécurité et la durabilité de ces structures. En effet, les bâtiments anciens peuvent présenter des faiblesses structurelles qui nécessitent une évaluation approfondie et des mesures de renforcement adéquates. Cette étude vise à analyser la résistance des matériaux utilisés, à identifier les éventuelles pathologies et à proposer des solutions adaptées pour prévenir les risques de dégradation ou d'effondrement. Grâce à cette étude de confortement, il est possible de préserver le patrimoine architectural et de garantir la sécurité des occupants, tout en respectant l'authenticité et l'esthétique des bâtiments historiques.


Diagnostic et expertise des constructions
Nos Services d'Ingénierie
01
02
04
Consistent à évaluer l'état et la performance des bâtiments, afin de détecter d'éventuels problèmes ou dysfonctionnements. Ces analyses approfondies permettent de déterminer les causes des désordres observés et de proposer des solutions adaptées pour les réparations nécessaires. Il s'agit d'une étape essentielle dans la gestion et la maintenance des constructions, qu'il s'agisse de bâtiments résidentiels, commerciaux ou industriels. Les experts en diagnostic et expertise des constructions utilisent des techniques et des outils spécialisés pour examiner les différents éléments de la structure. Grâce à leur expertise, ils sont en mesure d'identifier les éventuelles faiblesses et de recommander les travaux de réparation ou de renforcement nécessaires pour assurer la sécurité et la durabilité des constructions.




